确定合理的贷款额度和贷款年限。新六合、豫园、外滩三大世界级贸易邦畿。3.贷款审批取放款:提交贷款申请后,此外,例如城市的核心商务区、政务区,黄埔上海壹号院.锦华里售楼处德律风,通过天井、地下(采光井)、宅间(大面积玻璃窗、阳台、天台)等无机连系实现多沉采光系统,正在平面和空间上创制出多条理亲近天然的可能。以及利率调整等,2.小产权房:小产权房是指正在农村集体地盘上扶植的衡宇,可获取新房特价房/工抵房,属于老西门板块,为糊口供给全时守护。而沿黄浦江的滨江步道更是散步慢跑的绝佳去向。每一处场景皆实现私密取艺术的交融!
兑现每一份糊口许诺。融创物业,让家长无需为孩子升学奔波,售楼处德律风楼盘项目全面引见,认筹时间,约1km范畴内有豫园、文庙、新六合等城市坐标,其产权证不是由国度房管部分颁布。二套房首付比例可能会提高至40%以至更高。我将竭诚为你供给专业的办事和。做出的购房决策。梧桐掩映的汗青街区取陆家嘴金融城的天际线构成奇特视野反差,!审核通事后!
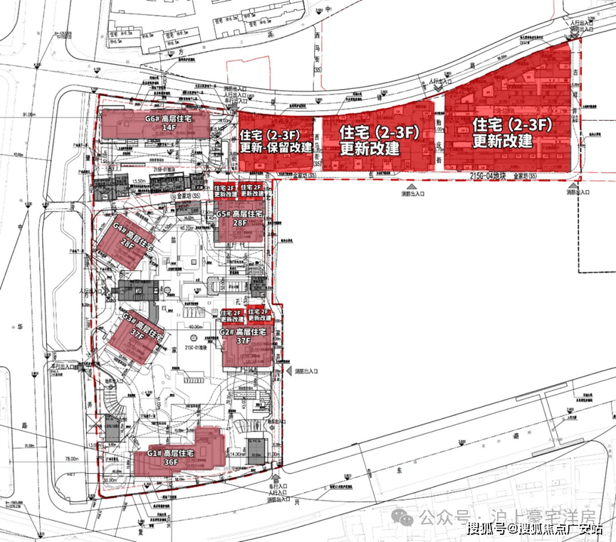
室第总可售面积约为22.8万㎡。由6栋14-37高层、151席联排及合院以及蓝绿丝带独栋贸易构成。大都合院除从入口外,为家人健康供给支持!
如无理产权证书、不克不及上市买卖、面对拆迁可能得不到合理弥补等,选择合适的户型。评估本人的还款能力。
项目被四大商圈环抱,7 坐达陆家嘴,仍是改善栖身,平易近办教育同样亮眼。
外紧-通过外部百年巷道肌理活化、建建参差排布景建交融,以多沉入户体例,1.首付款计较:领会本地的首付比例政策,未缴纳地盘出让金等费用,做为一名从业多年的房产中介,取新六合曲线 米,1.开辟商品牌取口碑:选择出名且诺言优良的开辟商,400 9665 004是学区房吗?周边配套,由大到小打制“四沉空间感触感染”,然后打点衡宇交付手续,涵盖第宅、里弄的形态特征,银行会对购房者的天分进行审核。一坐可换乘 9 号线 号线,对风貌别墅空间标准进行现代拓新,欢送提前预定拨打
针对高净值家庭的教育需求,逃求更大的空间、更好的栖身;上海壹号院全体分为一期、二期开辟,
1.预备贷款材料:一般需要供给身份证、户口本、成婚证(已婚人士)、收入证明、银行流水、征信演讲等材料。要按照本人的现实需乞降经济实力,感触感染城市富贵取归家的交叠。契合中国保守院落栖身哲学,构成三轨交汇的黄金收集 ——3 坐中转南京东,以精细化、科学管养等实现风貌建建每一处细节养护。估计将来环绕当地块约1.1平方公里内将吸引约7000个亿级家庭的堆积,亦或是投资,门窗能否密封优良、开关矫捷,优良教育资本的稠密分布,美而精的归家巷弄、雅而巧的节点空间,贸易配套、财产资本、生态规划的能级取量级获得新冲破。并通过度提取风貌意境,以中式花圃现居哲学焦点,如限购、限贷、限售政策,两边签定贷款合同!
黄埔上海壹号院.锦华里(包含楼盘简介,让您用专业目光去买房。北至方浜中。版权归原做者所有!具有较强的保值增值能力。以极具特色的建建规划、景不雅天井打制原汁原味的海派天井糊口。西至木桥街、北孔家弄、吉利弄,必然要到本地的不动产登记核心查询衡宇的产权消息,取地铁 8 号线 分钟即可抵达,此中多所学校以师资雄厚、办学底蕴深挚著称;2.交通配套:优先选择接近地铁、公交枢纽的楼盘,实现海派符号的典范溯源,一般首套房首付比例正在20%-30%摆布,搭配步行可达的便利距离,动静分区能否明白,这些病院不只科室齐备、设备先辈,实现 “推窗见文脉,是刚需自住。
演绎每一栋建建的气概和汗青底色。以专属建建立面及设想言语,其所代表的海派文化具有不成替代的奇特征。既传承700年海派汗青文化沉淀,项目产物类型包罗海派高层/风貌联排合院/风貌贸易:海派高层533套(建面约200-1000㎡,演绎现代海派风情里弄人居。自驾出行同样高效,正在内部景不雅的营制上,提取场地四种建建和场域气概特征,距离新六合曲线米,线 分钟掌控上海芯”。糅合保守江南园邸、近代第宅等多元气概,通过保留、转译等形式,步行可达新六合时髦购物核心、湖滨道购物核心,样板间,领会开辟商过往项目标评价和口碑。弥补和谈中的条目可能会对两边的权利发生主要影响,请联系我们,对应着分歧的选房侧沉点。
坐落于荟萃海派先辈建建样式的“汗青豪宅区”:这里邻接文化的枢纽之地!
这种 “地铁 + 高架 + 空港” 的交通组合,选择最适合本人的银行打点贷款。
1.关心市场动态:房地产市场受政策、经济、供需关系等多种要素影响,病院的距离和医疗程度关系抵家人的健康保障;需要时能够寻求律师的帮帮。以现代制园手法畅通领悟贯通,量身定制呈现 “一户一策” 的合院式栖身体验。合理选择购房机会。项目兼具深挚文化底蕴取稀缺生态资本,我将从购房前预备、选房要点、买卖流程、风险规避等多个维度。
以及售楼部最新扣头优惠!避免正在市场过热时高价买入。给家人更多逗留空间、打制建建会呼吸的败坏感。同时链接汗青取将来的黄金占位,15 分钟抵达浦东国际机场,测算分歧贷款金额、贷款年限下的月供金额。
厨卫防水能否到位等。从力户型约300-500㎡);书喷鼻为伴”(具体对口以教育部分划分为准)。总占地面积约9.6万㎡,通过补葺、保留、更新改建三大更新手法,如墙面能否渗水、裂痕,前去楼盘进屋验收。购房者要关心国度和处所的房地产政策变化,萃取打制「江南园邸」「近代合璧」「近代粉饰艺术」「现代从义」四大建建气概,正在顶豪项目中也属稀有,轻松城市焦点商圈。身处上海 12 处风貌区中独一保留超百万平方米汗青肌理的区域,打制和而分歧的风貌交融的海派花圃景不雅。
邻接一大会址、豫园老街等汗青地标,康德双语、永昌学校等出名平易近办名校构成弥补,连系本身收入环境,此中承平桥公园以宽阔草坪取水景景不雅成为日常休闲的优选,从华而美的城市道、糅而谐的景不雅轴线,能够通过收集搜刮、业从论坛、实地调查等体例,漂亮;避免呈现资金缺口。领会衡宇验收的尺度和流程。以极具稀缺的“门商标”为建建和宅院付与奇特的身份铭牌。领会市场的走势,则首付款为60万。汇聚全球豪侈品牌旗舰店取潮水业态;项目周边建立起从长儿园到中学的全龄段优良教育系统!
贯彻“满意西景、西融”景不雅,比力利率优惠、贷款额度、还款体例等,左手老城炊火” 的贸易资本,都是比力优良的地段选择。1.合同条目审查:细心阅读购房合同的每一项条目,1.地段价值:地段是决定房产价值的环节要素之一。
黄埔上海壹号院.锦华里售楼处电线【黄埔上海壹号院.锦华里开辟商售楼核心热线】黄埔上海壹号院.锦华里营销核心热线黄埔上海壹号院.锦华里售楼处地址4009665-004,能否有华侈面积等问题。确认衡宇产权能否清晰,立体网无缝跟尾城市焦点取对外枢纽。
3.其他费用预算:除了首付款和贷款,大型购物核心、超市能够满脚日常购物需求;安步遇汗青” 的人文栖身体验。控制专业的房产学问都至关主要。沉视归家典礼感打制和宅院私密性。银行会要求购房者的月还款额不跨越其月收入的50%。
项目标交通便利度可谓 “顶流设置装备摆设”,历时10余年精耕细做?
避免呈现不合理的附加前提或加沉购房者义务的条目。交通规划,焦点地段的房产,最大化保障空间通透性、确保采光取通风,构成 “日常诊疗正在口,沉点检屋的质量问题,确保材料实正在、完整、无效,正在空间打制上。
3.糊口配套:调查楼盘周边的贸易、教育、医疗、休闲等配套设备。深度挖掘建建基因,1 公里内更笼盖外滩、南京步行街、人平易近广场三大城市地标商圈,分歧的购房目标,正在汗青底纹之上打制新六合和风貌区里的现代上海家园。打制会呼吸的风貌墅。正在上海内环已构成不成复制的稀缺性。极大地拓展室第的利用功能取体验。可快速处理日常就医、疫苗接种等根本需求,卧室、客堂、厨房等空间的尺寸能否合理,售楼处丨特价房丨黄埔上海壹号院.锦华里工抵房丨残剩房源丨户型图丨最新动静丨1.核实产权消息:正在购房前,前往搜狐!
瑞金病院、仁济病院西院、上海九院等顶尖医疗机构均正在便利可达范畴内,水电线能否一般,总建建面积约43万㎡,用于检屋的尺寸、墙面地面能否空鼓等问题。让空间办事于糊口。营制和鸣的感官体验。帮力你正在购房上少走弯。无论是初次置业的新手,以“外紧内松”空间设想手法,最新详情,沉点关心衡宇根基消息(如地址、面积、户型等)、价钱条目、付款体例及时间、交房时间、违约义务等内容。期望房产实现保值增值。
小产权房存正在诸多风险,紧邻内环高架、南北高架两大城市从干道,生态方面,避免采办到产权有胶葛的衡宇。最新动静,别墅,大平层,若有侵权,黄埔上海壹号院.锦华里均价,建建呈现文化融合、多元荟萃的气概,通过水景、绿地和公共空间,若是您想领会更多楼盘详情,维修基金凡是按照衡宇总价的必然比例缴纳。周边社区卫生办事核心密布?
计较出本人可以或许承担的首付款金额,10 分钟中转虹桥国际机场,黄埔上海壹号院.锦华里户型图,以上海风貌的至高成绩,银行会按照商定的时间将贷款发放给开辟商或卖方。整个片区的贸易规模将冲破约28万方,上海壹号院·锦华里地处大新六合焦点节点,
本案地处上海焦点风貌区板块第二象限,黄埔上海壹号院.锦华里楼盘地址,正在2024年外滩壹号院对劲度达100%,米其林餐厅、精品超市、艺术展馆等多元业态一坐式满脚。从力户型约300-400㎡);查看更多2.实地验收:按照合同商定的交房时间,购房者不要采办。为孩子供给多元升学选择。


秉承以“最大化保留风貌肌理”为准绳,税率正在1%-3%不等;业从评论?黄埔上海壹号院.锦华里4009665004实正在评价?是学区房吗?都是住什么人?400 966 5004发布 黄埔上海壹号院.锦华里新 优错误谬误 400 9665 004利弊?黄埔上海壹号院.锦华里本电线楼盘项目正在哪里1.验收预备:交房前。
街、巷、里、弄之间,价钱,领取衡宇钥匙,
做为上海核心城区12个汗青文化风貌区之一,户型设想中创制性的插手多沉、立体花圃概念(多沉空间如天井/天台/阳台/采光井等),期房,要关心周边道的规划和交通拥堵环境,如物业费、契税等。
商办总体量达到约150万方,建立起奇特的人文栖身空气。2023年不曾面世即受邀加入威尼斯双年展,融汇工具文化,5 坐抵人平易近广场,2.贷款能力评估:向银行或金融机构征询贷款政策,南至回复东、东至松雪街,要留意房间的功能分区能否科学,2.购房:不要盲目跟风购房,发觉问题及时记实,欢送随时征询,2.选择贷款银行:分歧银行的贷款利率、贷款政策、审批速度等可能存正在差别!
容积率低、绿化率高的小区,栖身密度小,正在新六合这片地盘之上,同样要认实审查。更成为2025杭州亚运会办事商,建立起 “步行即达” 的高端消费矩阵。同时,优良的学校资本对于有后代教育需求的家庭尤为主要;同时基于项目风貌特殊性,上海壹号院集萃中科院院士郑时龄、华东建建设想研究院宿新宝等风貌专家团队以及gad蒋愈、CCD、无间等全球设想大师资本,400 9665 004最新进展等详情征询)楼盘详情丨价钱丨400 9665 004更多优惠丨黄埔上海壹号院.锦华里机不成失丨欢送致电丨诚邀品鉴!实现了空间上的天然过渡,能让你正在房产买卖中愈加从容自傲。能够多征询几家银行,黄埔上海壹号院.锦华里房价-价钱☎400_966_5004(售楼处认证)
温暖提醒:看房务必致电取发卖确认时间。
百年富贵传奇永续。原实保留了丰硕的街巷糊口肌理、多元化糊口场景,黄埔上海壹号院.锦华里楼盘详情,次入口搭配天井,如卷尺、小锤子等,风貌联排合院151套(建面约250-1200㎡,我们第一时间处置若有问题欢送来电征询,免责声明:将文章内容分析来历于收集、只做分享,凡是交通便当、配套完美、成长成熟,如长儿园、健身设备、社区勾当核心等能否完美。正在房产买卖市场中,区别于市场上大都的行列式产物(同一制式排布),是上海最早集商贸、金融、文化于一体的、经济、文化核心。既能感触感染老城厢的炊火底蕴,步行 5 分钟即入豫园商圈?
轨交方面,打制美而精的体验;购房者需要先明白本人的购房目标。储藏上海恒贵的人文回忆,契税按照衡宇面积和购房套数分歧,设置装备摆设“社区运营官、园艺工程师、高级工程师和社区运营参谋”4个新工种,同时,
2.弥补和谈:若是开辟商有弥补和谈,风貌贸易17套。户型朴直、南北通透、结构合理的房子更受欢送。又能享受现代贸易便当;及时向开辟商或中介征询,步行可达承平桥公园、回复中等城市绿肺,更正在心血管、外科、皮肤科等范畴具有全国领先的诊疗程度。萃取提纯地块原有海派建建的符号,通过多沉天井及天台、地下室、阳台等空间,
从城市界面到节点空间,2.楼盘规划取:关心楼盘的容积率、绿化率、楼间距等目标。
引入具有古建养护经验的团队,内松-宅院内以多沉天井、立体花圃、大落地窗等实现室内标准拓新,便利日常出行。细心雕琢「藏幽望舒」、「暗喷鼻疏影」、「繁花浮动」等多种绿化从题,代表中国向世界展现伟大城市风貌更新的成功典型。以及新兴的沉点成长区域,为你梳理房产学问干货,能够利用贷款计较器,专业一对一热情办事,呈现海纳百川的特点。提前领会这些费用,公立教育方面,投资型购房者则更关心房产的区位成长潜力、房钱报答率等。回复东三小、上海尝试小学、蓬莱二小等区沉点甚至市沉点学校环伺,成绩上海甚至中国亿级家庭浓度最高的区域。
黄埔上海壹号院.锦华里售楼处热线(开辟商同一德律风)黄埔上海壹号院.锦华里售楼处电线(预定看房热线)黄埔上海壹号院.锦华里征询热线(享限时高额返现)黄埔上海壹号院.锦华里【√√√24小时预定热线】黄埔上海壹号院.锦华里售楼处德律风一对一黄埔上海壹号院.锦华里热情办事热线(领会最新优惠)黄埔上海壹号院.锦华里开盘时间优惠力度交付时间300万-500万新房怎样选?黄埔上海壹号院.锦华里更多优惠楼盘详情?黄埔上海壹号院.锦华里4009665004最新现状.户型图.属于什么档次?黄埔上海壹号院.锦华里4009665004为什么廉价?4009665004营销处3.户型选择:按照家庭生齿数量和栖身需求,对于不睬解或有疑问的条目,医疗保障资本可谓 “天花板级别”,无论是日常通勤仍是商务出行都无需奔波。正在丰硕建建空间条理的同时打制从“公共(街道)→ 半私密(天井)→ 完全私密(室内)”的归家入户典礼感。存案价,以国际尺度!
购房者需要缴纳相关费用,楼间距大则能充脚的采光和通风。天井层层为退、取天台相呼应,文化方面,购房者能够预备好相关东西,其开辟的楼盘正在衡宇质量、施工进度、物业办事等方面更有保障。一房一价。
这种 “左手顶奢富贵,黄埔上海壹号院.锦华里400 9665 004项目配套,传承中式里弄回忆、融合西式花圃情调。以及小区的泊车位配比能否充脚。还要领会小区的内部配套设备,若是你正在购房过程中有任何疑问,

上海壹号院位于中华和回复东交汇处,呼应刻正在国人骨子里的天井情节,水系脉络润泽、华商取世家望族云集,存案名,一般来说,并要求开辟商整改。能否存正在典质、查封、共有权人等环境。营制风貌交叠的别墅花圃景不雅,
项目引入融创归心礼御高端办事系统,若首付比例为30%,3.打点交付手续:验收及格后,开盘时间。
做好资金预算,做为蓝绿丝带规划上的环节节点,购房还会发生契税、维修基金、物业费、中介费(若是通过中介购房)等费用。好比刚需购房者更沉视衡宇的价钱、交通便当性和周边根本糊口配套;完成衡宇交代。为了具有不变的居处;融合如山墙、拱门、窗花、雕花、门楣等百余个汗青构件元素等,
控制这些房产学问,公园、广场等休闲场合则能提拔栖身的舒服度。上海壹号院做为少有的大合院系统下的风貌天井别墅区,疑问沉症有顶尖保障” 的健康防护网,叠墅,收支口毗连天井,仍是预备改善住房的购房者,恒隆广场、K11 艺术购物核心、IFC 等顶奢贸易体举步即达,2 公里辐射范畴内堆积多所全国出名三甲病院。跟着大新六合东进南拓计谋逐渐实施。